Ξενοδοχείο Κτίριο Προσωπικού Μύκονος
Μια Επένδυση στο Νησί των Ανέμων με αξιοπρόσεκτη απόδοση.
PRIVATE ΑΚΊΝΗΤΑ


Στοιχεία Ακινήτου:
Πώληση μέσω μεταβίβασης Ανώνυμης Εταιρείας (Α.Ε.), με μοναδικό περιουσιακό στοιχείο το ακίνητο και την άδεια ξενοδοχειακής χρήσης (2*)
• Εμβαδόν οικοπέδου: 2.479 τ.μ.
• Εμβαδόν κτιρίου: 1.310 τ.μ.
• Σύνολο δωματίων: 43
• Δυνατότητα φιλοξενίας: έως 86 άτομα (σε χρήση προσωπικού)
• Στάδιο κατασκευής: Σε εξέλιξη (ολοκλήρωση τοιχοποιίας & έναρξη Η/Μ εγκαταστάσεων)
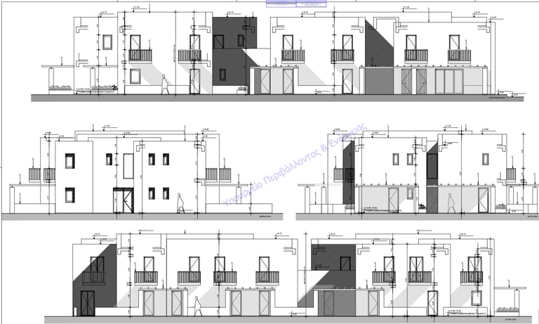
• Πλήρης τεχνικός φάκελος διαθέσιμος (σχέδια εφαρμογής, φωτορεαλιστικά, τεχνική έκθεση)Αρχικά Ζητούμενο Τίμημα 4.8Μ πλήρως αποπερατωμένο σε 12 μήνες
Ζητούμενο Τίμημα ως έχει (ανάλογα με τη φάση αποπεράτωσης) 2.9Μ
Προβλεπόμενο εισόδημα 330-370.000 ετησίως
Απόδοση 7%










Περιγραφή Ακινήτου
Πρόκειται για επενδυτικό ακίνητο στη Μύκονο, το οποίο αφορά την πώληση εταιρικού σχήματος (Α.Ε.), στο οποίο περιλαμβάνεται αποκλειστικά το συγκεκριμένο ακίνητο μαζί με την υφιστάμενη άδεια ξενοδοχειακής χρήσης.
Το ακίνητο βρίσκεται σε φάση κατασκευής, προσφέροντας στον επενδυτή τη δυνατότητα να αποκτήσει ένα project σε εξέλιξη και να διαμορφώσει το τελικό αποτέλεσμα σύμφωνα με το επιχειρηματικό του πλάνο, είτε αυτό αφορά τουριστική εκμετάλλευση είτε κάλυψη στεγαστικών αναγκών προσωπικού.
Η φιλοσοφία της ανάπτυξης, σε συνδυασμό με τη διαμόρφωση του κτιρίου, επιτρέπει ευελιξία στη χρήση και στη διαχείριση, στοιχείο ιδιαίτερα σημαντικό για την αγορά της Μυκόνου, όπου η ζήτηση για οργανωμένες λύσεις φιλοξενίας παραμένει έντονη.
Συνολικά, πρόκειται για ένα ακίνητο με σαφή επενδυτικό χαρακτήρα, που απευθύνεται σε αγοραστές οι οποίοι αναζητούν είτε έτοιμη βάση για ανάπτυξη ξενοδοχειακής δραστηριότητας είτε μία δομημένη λύση με δυνατότητα άμεσης αξιοποίησης σε επίπεδο εισοδήματος.
Τοποθεσία
Το ακίνητο βρίσκεται στην Άνω Μερά Μυκόνου , σε κομβικό σημείο στο κέντρο του νησιού, προσφέροντας εύκολη πρόσβαση τόσο προς τη Χώρα όσο και προς τις κύριες παραλίες της ανατολικής και βόρειας πλευράς.
Η περιοχή συνδυάζει την ηρεμία της ενδοχώρας με αναπτυσσόμενη τουριστική δραστηριότητα, αποτελώντας στρατηγική επιλογή για χρήσεις που απαιτούν λειτουργικότητα, πρόσβαση και μεγαλύτερη ευελιξία χώρων σε σχέση με τα πιο κορεσμένα σημεία του νησιού.
περίπου 8 χλμ. ανατολικά της Χώρας (περίπου 15-20 λεπτά οδικώς). Αποτελεί ιδανική βάση για πρόσβαση στις ανατολικές παραλίες, ενώ προσφέρει μια πιο παραδοσιακή εμπειρία σε σχέση με την κοσμοπολίτικη Χώρα.
Βασικές Αποστάσεις από την Άνω Μερά:
Χώρα (Λιμάνι/Κέντρο): ~8 χλμ. (περίπου 15-20 λεπτά).
Αεροδρόμιο: ~7-8 χλμ. (περίπου 15 λεπτά).
Νέο Λιμάνι (Τούρλος): ~9-10 χλμ. (περίπου 20-25 λεπτά).
Παραλία Ελιά: ~2 χλμ..
Παραλία Καλαφάτη: ~3-4 χλμ.
Παραλία Καλό Λιβάδι: ~3 χλμ.
Εκτίμηση & Τοποθέτηση
Η Μύκονος αποτελεί διαχρονικά τον Νο1 διεθνή τουριστικό προορισμό της Ελλάδας, με σταθερή ζήτηση, υψηλές αποδόσεις και έντονο επενδυτικό ενδιαφέρον . Σε αυτό το πλαίσιο, ακίνητα με ξεκάθαρη τουριστική κατεύθυνση και δυνατότητα άμεσης αξιοποίησης αποκτούν ιδιαίτερη αξία.
Το συγκεκριμένο ακίνητο δεν αποτελεί απλώς ένα κτίριο υπό ανάπτυξη, αλλά ένα ολοκληρωμένο επενδυτικό project με σαφή προσανατολισμό, που μπορεί να καλύψει είτε τουριστική εκμετάλλευση είτε τη διαρκώς αυξανόμενη ανάγκη στέγασης προσωπικού στο νησί — μία αγορά με έντονη ζήτηση και περιορισμένη προσφορά.
Ιδιαίτερη σημασία έχει το γεγονός ότι η συναλλαγή πραγματοποιείται μέσω μεταβίβασης εταιρείας (Α.Ε.), κάτι που σε αντίστοιχες επενδύσεις προσφέρει ευελιξία, ταχύτητα ολοκλήρωσης και δυνητικά φορολογικά και λειτουργικά πλεονεκτήματα για τον επενδυτή, σε σύγκριση με την κλασική μεταβίβαση ακινήτου.
Συνολικά, πρόκειται για μία επένδυση που συνδυάζει τοποθεσία, δυναμική αγορά και έτοιμη βάση ανάπτυξης, απευθυνόμενη σε αγοραστές που αναζητούν ουσιαστική έκθεση στον τουριστικό κλάδο της Μυκόνου με προοπτική άμεσης και μακροπρόθεσμης απόδοσης και υπεραξίας.
Πληροφορίες & επίσκεψη
Για περισσότερες πληροφορίες ή προγραμματισμό επίσκεψης, μπορείτε να επικοινωνήσετε με τον Βασίλη Αστεριάδη στο 2108062271 info@vasilisasteriadis.com


